2024年2月12日 星期一

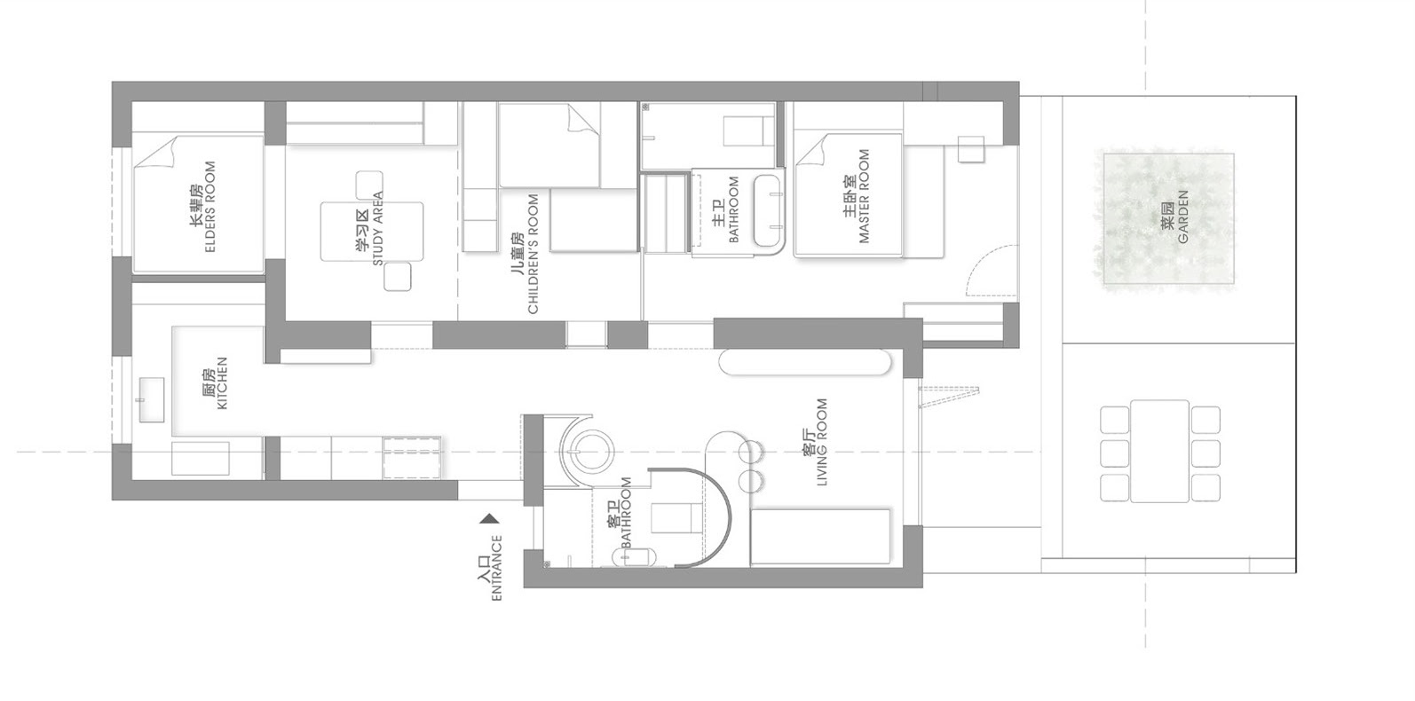
三代同堂的狹長型居住空間改造

位於大陸杭州的老舊住宅

且為狹長型的屋型

重新改為三代同堂的居住空間


坪數的條件不夠

建物的不可更動承重牆

將空間劃分為二

家庭成員為夫妻.小孩(二位學齡期)和年邁的父母

要滿足六口人的居住空間

也要充裕的收納機能





















































 每一篇分享的案例,會附上平面配置圖的用意,能用圖片比對平面配置圖的位置,這樣才能學到別人的設計與手法。是我以前剛入行至現今,增進自身設計能力的最快速方法。




沒有留言:

張貼留言